Farmacia – Lazkao.
Proyecto de ampliación de farmacia, en colaboración con arquitecto técnico Arantza Vilanova. Lazkao. Gipuzkoa.
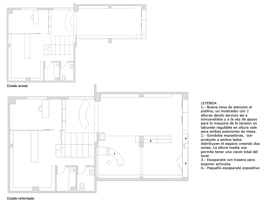
Manteniendo la farmacia actual se amplía dicho local uniéndolo con el local contiguo.
Proyecto de ampliación de farmacia, en colaboración con arquitecto técnico Arantza Vilanova. Lazkao. Gipuzkoa.
Manteniendo la farmacia actual se amplía dicho local uniéndolo con el local contiguo.