Potxolito, Irun
Proyecto, dirección de obra y coordinación de gremios. Luis Mariano, 15. Irun. Gipuzkoa.
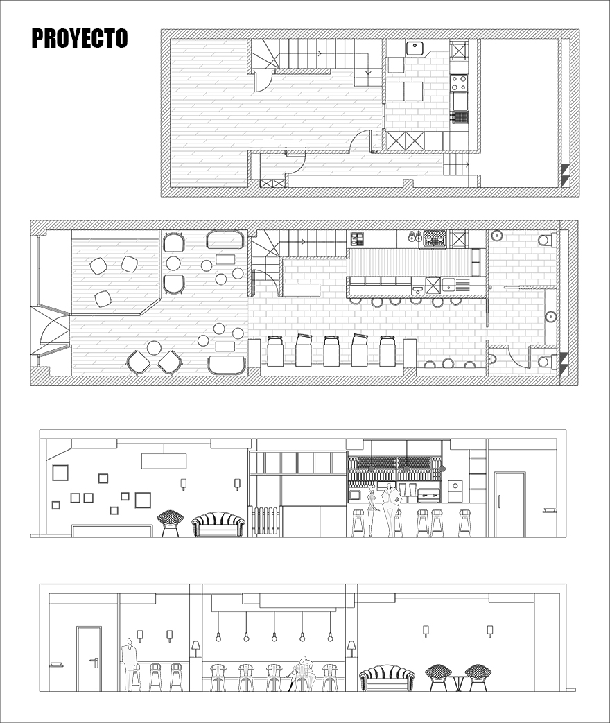
El local está situado en Luis Mariano, una calle peatonal del centro de Irun. Anteriormente era una tienda de ropa y lo reformamos, manteniendo las escaleras de acceso al sótano.
En la planta principal hay una zona infantil para que los más pequeños se diviertan jugando, donde se hacen cuentacuentos, música en directo… se pueden encontrar diferentes juguetes de madera, libros y cuentos, mobiliario infantil para pintar…
Hay una zona con sofás y butacas con mesitas de té bajas, un banco corrido hecho a medida con mesas y sillas y una zona wifi con taburetes altos.
En el sótano se encuentra una zona más privada, una sala para realizar talleres, fiestas de cumpleaños, fiestas privadas, etc. Abajo también está la cocina y el almacén.
Una casita de madera hace de tienda ya que Potxolito tiene también una boutique con su propia línea de ropa, expuesta aquí y en el escaparate.
Es un local pequeño, ya que la zona pública no llega a 50m2, lo que lo hace acogedor y familiar. Se ha elegido una iluminación cálida y tenue que aporta intimidad a los espacios. Todo es blanco lo que hace que sea un lugar armonioso y tranquilo. Una gran pared de pizarra les encanta a los más txikis que desde el minuto cero están con las tizas dibujando como locos. Se han elegido materiales calidos como la madera y mobiliario que haga sentir un ambiente hogareño, la idea era hacer sentir a los clientes como en casa.
Potxolito es un espacio creado por dos «amatxos todoterreno» con una pasión común: los niños. Es un espacio polivalente planteado principalmente para que niños y padres puedan pasar juntos un buen rato. Pero también está orientado para el resto de miembros de la familia: adolescentes, abuelos, tíos, primos…
En este céntrico local se puede disfrutar de unos ricos desayunos, comidas, meriendas y cenas, todo casero y hecho con mucho amor, destacar su repostería, especialmente buena y bonita, así como los batidos y zumos naturales.
En colaboración con el arquitecto Patxi Gartzia.
Gracias Estitxu Ortolaiz por ayudarme con algunas fotos.



















